Аренда офиса — 520 м², 5 этаж, 2 262 000 Руб./мес #101088 в Бизнес-центре Северное сияние
301 метр (4 минуты пешком) — ещё 2Савёловская Москва, Правды, 26 - ИФНС № 14

- Базовая ставка за м² в год
- 35 000 Руб.
- Договор
- НДС, RUB
- Эксплуатация
- НДС, оплачивается отдельно, 8 500 Руб./м²/год
- Коммунальные платежи
- по запросу, УСН, RUB
- Ставка за м² в год (c НДС и OPEX)
- 52 200 Руб.
- Цена в месяц (с НДС и OPEX)
- 2 262 000 Руб.
- Этаж
- 5 этаж из 15
- Площадь
- 520 м²
- Состояние
- Стандартная отделка
- Подземная многоуровневая160 м/м:
- Аренда13 000 Руб./мес
- Наземная открытая74 м/м:
- Аренда11 000 Руб./мес
Центральная система кондиционированияКондиционирование: Приточно-вытяжнаяВентиляция: Система пожаротушения: - Спринклерная система пожаротушения
ДаОхрана:
AКласс здания: 2 702 м²Площадь типового этажа: 2006Год постройки: 37 833 м²Общая площадь (GBA): 28 000 м²Арендная площадь (GLA):
Центр ресепшн Кафе для арендаторов Место для ожидания посетителями Отделение банка Банкомат
- E-mail: rent@bc-severnoe-siyanie.caos.ru
- Телефон отдела аренды: +7 916 123-21-08
- Мессенджеры: Телеграм, What'sup
- Наш адрес:Москва, Правды, 26, район Беговой, САО, ИФНС № 14

Другие свободные блоки в Бизнес-центре Северное сияние
- 2 295 м²
- Аренда офиса 2 295 м², 47 000 Руб./м²/год
- 8 988 750 Руб./мес
- 13 этаж
- Стандартная отделка
- Обновлено 01 ноября 2024
- 2 294 м²
- Аренда офиса 2 294 м², 47 000 Руб./м²/год
- 8 984 833 Руб./мес
- 14 этаж
- Стандартная отделка
- Обновлено 01 ноября 2024
- 2 114 м²
- Аренда офиса 2 114 м², 28 800 Руб./м²/год
- 5 073 600 Руб./мес
- 13 этаж
- Стандартная отделка
- Обновлено 01 ноября 2024
- 2 112 м²
- Аренда офиса 2 112 м², 28 800 Руб./м²/год
- 5 068 800 Руб./мес
- 14 этаж
- Стандартная отделка
- Обновлено 01 ноября 2024
- 869 м²
- Аренда офиса 869 м², 45 000 Руб./м²/год
- 3 258 750 Руб./мес
- 6 этаж
- Стандартная отделка
- Обновлено 01 ноября 2024
- 869 м²
- Аренда офиса 869 м², 28 800 Руб./м²/год
- 2 085 600 Руб./мес
- 6 этаж
- Стандартная отделка
- Обновлено 01 ноября 2024
- 560 м²
- Аренда офиса 560 м², 45 000 Руб./м²/год
- 2 100 000 Руб./мес
- 3 этаж
- Стандартная отделка
- Обновлено 01 ноября 2024
- 559 м²
- Аренда офиса 559 м², 28 800 Руб./м²/год
- 1 341 600 Руб./мес
- 3 этаж
- Стандартная отделка
- Обновлено 01 ноября 2024
- 305 м²
- Аренда офиса 305 м², 47 000 Руб./м²/год
- 1 194 583 Руб./мес
- 6 этаж
- Стандартная отделка
- Обновлено 01 ноября 2024
- 97 - 12 594 м²
- Аренда офиса 97 - 12 594 м², от 28 800 до 38 676 Руб./м²/год
- от 232 800 до 40 591 316 Руб./мес
- 2 ~ 14 этажи
- Смешанная планировка
- Обновлено Вчера
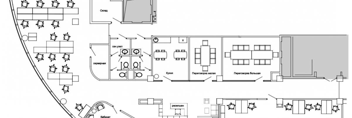
Аренда офиса площадью 520 м² - ID 101088.
По техническим параметрам офис соответствует классу A. Объект оснащен системами кондиционирования (центральная система кондиционирования). Офис расположен на 5 этаже. Отделка сдаваемого блока - Стандартная отделка. Приняты меры для комфорта и безопасности.
- Охрана
- Контроль доступа в здание
Ближайшая станция метро Савёловская расположена в 4 минутах ходьбы. Инфраструктура объекта включает центр ресепшн, кафе для арендаторов, место для ожидания посетителями, отделение банка и банкомат. Здание оборудовано лифтами компании Otis. На сайте представлена подробная презентация блока, содержащая фотографии, планировку и цену. Если Вас интересует аренда офиса, оставьте заявку или позвоните в наш отдел коммерческой недвижимости. Мы оперативно подберем оптимальный вариант напрямую от собственника, сэкономив Ваше время и деньги.
Аренда офиса - 520 м², 2 262 000 Руб./мес в бизнес-центре Северное сияние.